



Plot for sale
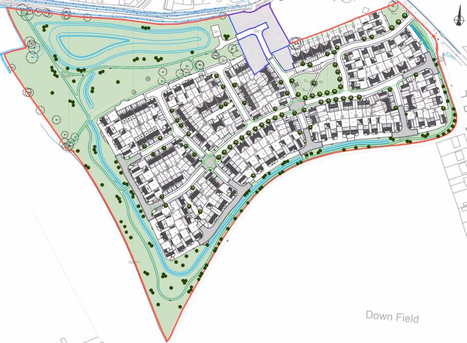
Fantastic opportunity to own one of just eleven Self-Build Plots ranging in size from 207 square metres to 511 square metres situated on the northern edge of the new development off Fordham Road, Soham. The Self-Build Plots are suitable for the construction of two storey detached houses rang...
Plot for sale
Description
Fantastic opportunity to own one of just eleven Self-Build Plots ranging in size from 207 square metres to 511 square metres situated on the northern edge of the new development off Fordham Road, Soham. The Self-Build Plots are suitable for the construction of two storey detached houses rang...
Contact Agent
Smart Picks — Professionals Relevant to This Land
Based on this property's key features, here are the specialists you may want to consult as part of your due diligence: land agents, rural solicitors and rics surveyors.

Land Agents
Essential for navigating the land market, finding buyers, and securing the best price.

Rural Solicitors
Significant investment (£150K+) requires legal expertise for conveyancing, title checks, and transaction security.

RICS Surveyors
Prime or productive land requires professional valuation to ensure fair market value.
Location
Fordham Road